"Orso" L'Art du Bois
Sauna "Eterna"
Sauna "Eterna"
Regular price
$27,000.00 CAD
Regular price
$34,000.00 CAD
Sale price
$27,000.00 CAD
Unit price
per
Shipping calculated at checkout.
Couldn't load pickup availability
Eterna — light and comfort in every moment.
A spacious window creates a sense of connection with the surrounding world while maintaining energy efficiency. This sauna retains heat, providing the perfect balance between comfort and view.
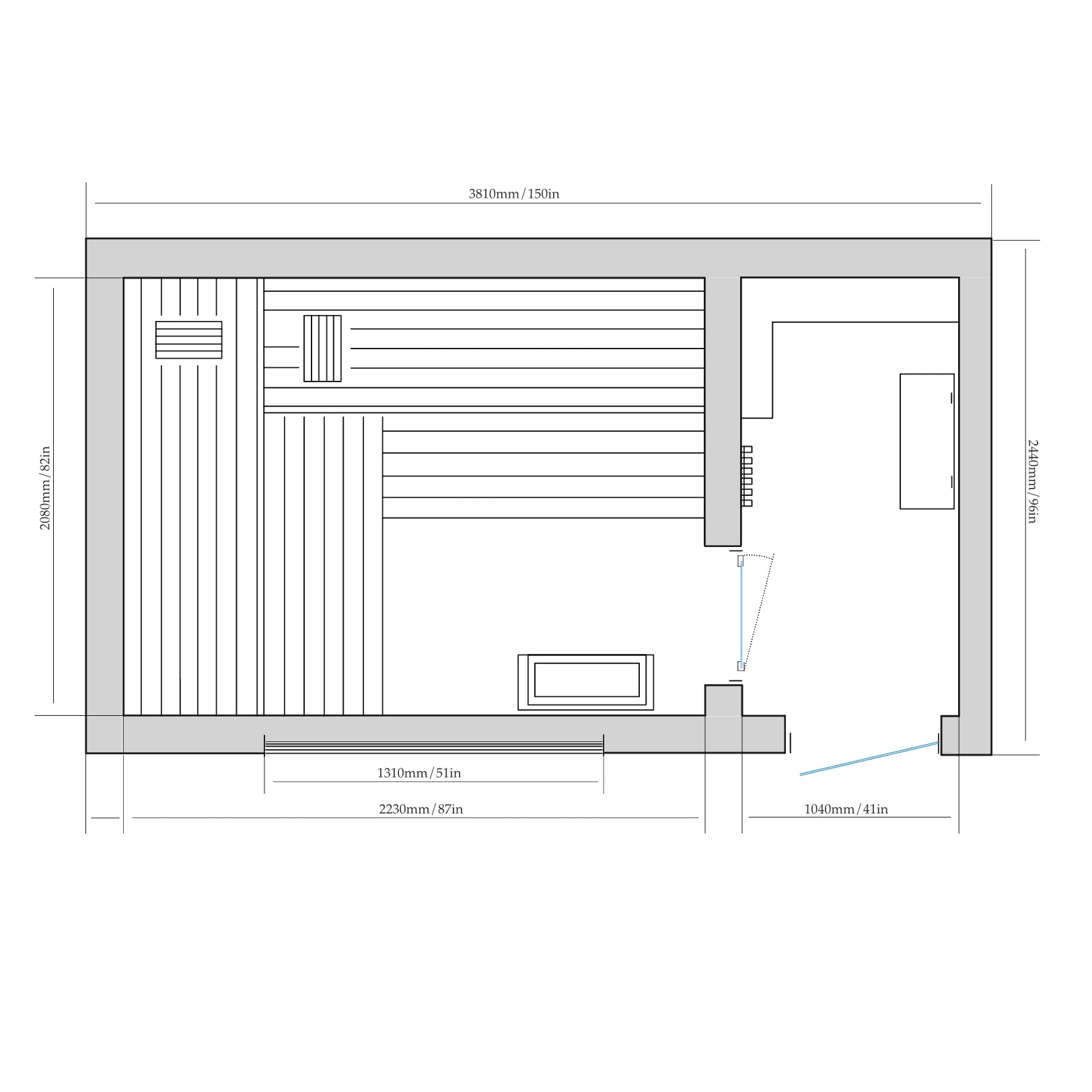
Sauna Dimensions
Length 3.8m
Width 2.8m
Height 2.44m
Electric heater HARVIA SW80 BLACK (optional)
Heater output - 8kW (optional)
Max.Stone Capacity - 20kg
FEATURES
- Accommodates up to 8 people.
- Large 10/12mm or double-glazed window (optional).
- Equipped with a HARVIA SW80 BLACK heater or another HARVIA stove (optional).
- Two-level benches made of knot-free thermo-treated ash, alder, or red cedar (pictured: cedar).
- Golden, warm LED lighting.
- Entrance area with hooks for clothes and towels, a table, and shelves for storage made of red oak.
- Interior horizontal cladding made of red Canadian cedar.
- Exterior horizontal cladding made of ash, stained in a color of the customer’s choice.
- Insulated with a special material of density >32 kg/m³ and sauna vapor barrier foil. Wall thickness — 180 mm.
- Assembled on a (movable) rigid base.
